Unit 5 Century Court
Contact us today

Property Type

Industrial

Property Size

5,401 sq ft

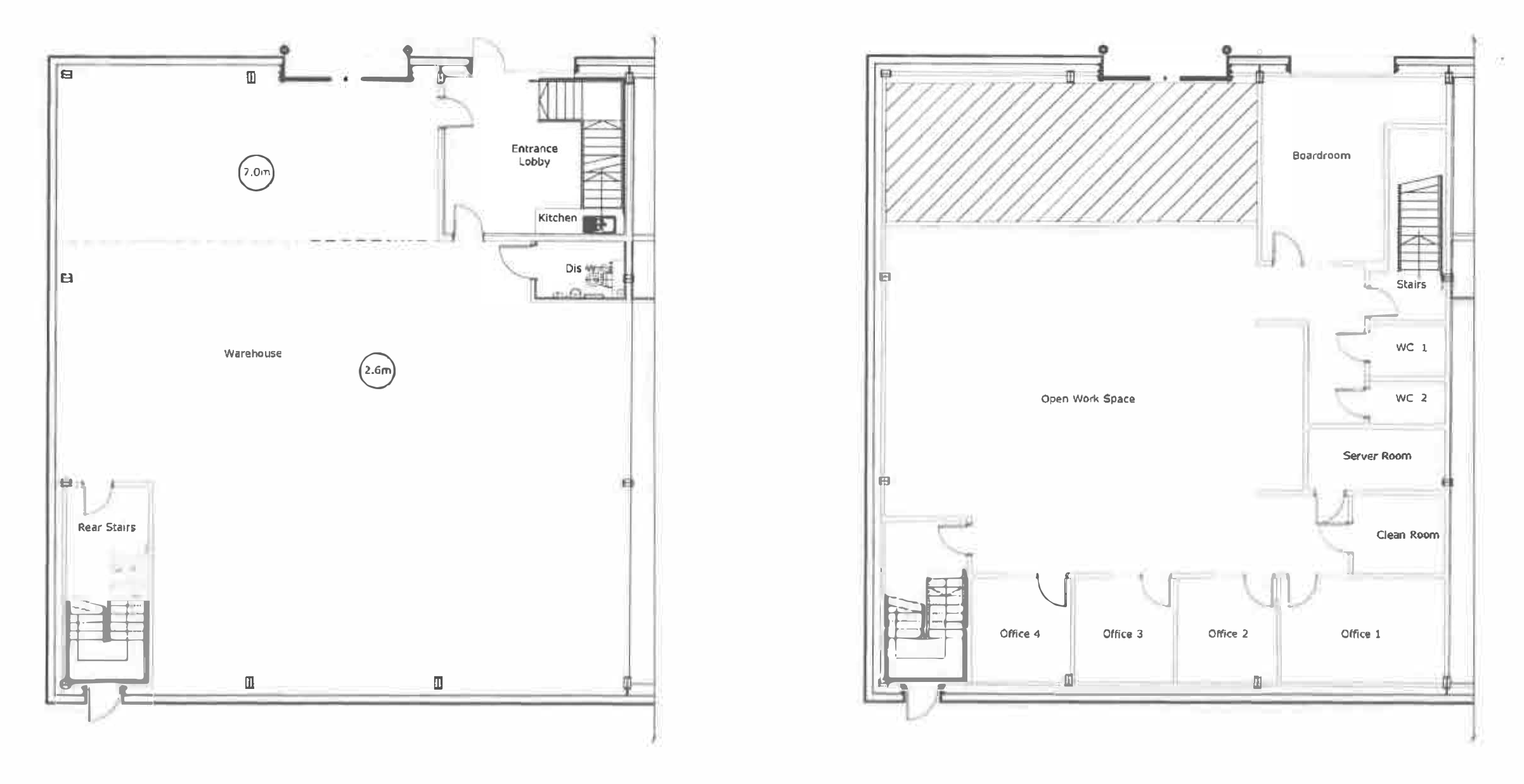
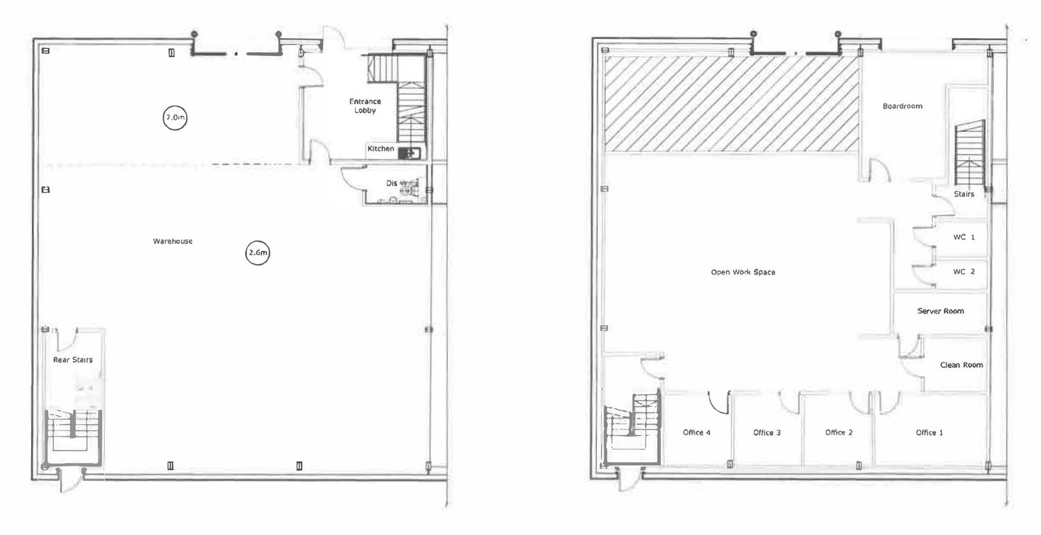
Unit 5 Century Court is a dynamic commercial space nestled within a contemporary industrial development and is available for occupation.

Spanning 3,091sq ft, this unit seamlessly combines industrial functionality with modern office amenities, making it an ideal choice for a variety of business needs.

This unit features modern office facilities on the first floor of 2,310 sq ft, electric roller shutter doors, WC and kitchen accommodation providing essential amenities for the comfort and convenience of your staff. It also provides excellent forecourt parking.

  Download floorplan
Unit 5 Century Court
Unit 5 Century Court

Interested in this workplace?

For prices and availability, please get in touch either via our enquiry form or using the contact details below.

  Submit an enquiry
  Share property
Joanna Kearvell
+44 (0)1296 398 383
+44 (0)7887 793 030
jk@chandlergarvey.com
Duncan May
+44 (0)1865 985365
+44 (0)1865 985365
duncan.may@bidwells.co.uk
Will Davis
+44 (0)1865 848488
+44 (0)7552 600435
will.davis@cbre.com

Key Features

Portal frame construction
Concrete floor with 40KN/m2 load capacity
Three-phase electricity supply
Electric roller shutter door
Fully fitted offices on first floor

Floor plans

Unit 5 Century Court-floorplan

With a vibrant history, well-connected location and an impressive reputation for innovation - Westcott is a secret worth discovering.

Travel distances:

Direct access from the A41

J9 M40: 11 miles

Aylesbury: 7 miles

Bicester: 9 miles

Oxford: 20 miles

Milton Keynes: 21 miles

Heathrow Airport: 48 miles

Central London: 49 miles

what3words location: slopes.sprinkler.hippy

© 2025 Westcott Venture Park