Design & build

The project team at Westcott are highly experienced in delivering bespoke design and build projects, working closely with companies and their advisors throughout the process, from concept to hand over.

Park Brochure

Make the most of our space

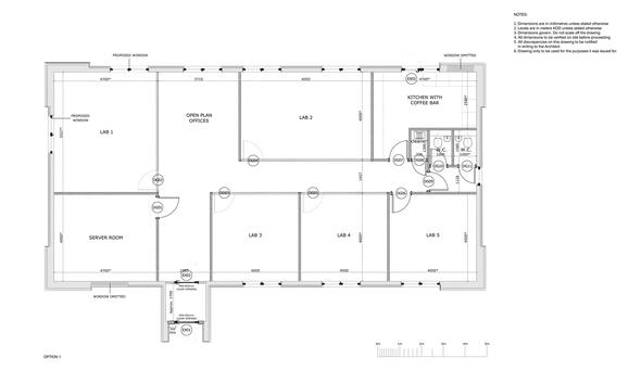
Alongside the rolling programme of new industrial, office and R&D buildings at Westcott, we also offer bespoke Design & Build packages within the Development Plots on the Park tailored to fulfil specific occupier’s specifications for buildings between 5,000 sq ft to 50,000 sq ft.

There is a streamlined delivery programme, including the detailed design planning application, potentially enabling a building to be built within 12-18 months from the date of contract. Furthermore, many of the Plots fall within the Enterprise Zone enabling qualifying companies to enjoy the tax and rate relief benefits.

Design and Build development examples
Design and build at Westcott
Availability
Find out more

Image gallery

Like one of our spaces?

Or contact us


Westcott Venture Park,
Westcott, Aylesbury,
Buckinghamshire,
HP18 0XB

© 2025 Westcott Venture Park